多物業管理民用建筑火災自動報警系統設計
多物業管理民用建筑火災自動報警系統設計
大型綜合民用建筑的建設方或者運營方為了迎合多方的需求和追求利潤多樣化,常常提出全業態的概念,力爭全年齡段、全行業的人都能在該建筑中得到全周期、一站式的功能需求和服務。
一個典型的商業辦公綜合體項目,一般會有地下車庫、商業裙房、塔樓(辦公樓/酒店/公寓)等,在該類型項目中可能還會零星分布幾棟獨立的辦公樓專門用作孵化器或者創意辦公等。這類綜合體項目在管理模式上,一般又會有可售部分、自持部分、第三方全權托管等物業類型。
該類型建筑一般具有體量大、業態多、物業管理多樣化等特點,在進行火災自動報警系統設計時,除嚴格按照國家、地方、行業等相關的現行標準、規范進行設計外,往往還需要同時考慮建筑形態分布、業態類型以及物業管理劃分等因素。如:建筑用地過于狹長,須考慮信號傳輸距離和管理人員響應時間等因素;業態多且復雜,須考慮特殊業態對火災自動報警系統的特殊要求;多個物業管理以及多家物業管理界面有交叉,須考慮設置多個消防控制室及設計合理的報警區域及聯動控制邏輯等。
本文將重點對存在多個物業管理的大型綜合民用建筑的特點進行分析,合理選擇火災自動報警系統形式,使火災自動報警系統跟建筑特點和物業劃分相適應,做到安全可靠、經濟合理、權責分明,在預防和減少火災危害、保護人身和財產安全等方面發揮科學、有效的作用。
火災自動報警系統的設置和報警形式的選擇
火災自動報警系統設計的前置條件,應首先按GB 50016-2014《建筑設計防火規范》(2018年版)第8.4節相關規定判斷是否需要設置。
需要設置火災自動報警系統的,應按GB 50116-2013《火災自動報警系統設計規范》(以下簡稱《報警規范》)的規定,確定合理的報警形式。
《報警規范》中有以下3種報警形式:區域報警系統、集中報警系統、控制中心報警系統。需要說明的是:
a.選擇集中報警系統或控制中心報警系統的保護對象,均應設置消防控制室。
b.規范及對應條文解釋中有關集中報警系統的描述“只設置一臺具有集中控制功能的火災報警控制器和消防聯動控制器”和“由于系統容量限制而設置了多個起集中作用的火災報警控制器”提到火災報警控制器(含聯動型)的設置數量,設計中不能簡單理解為凡是設置多于一臺火災報警控制器含聯動型的系統就是控制中心報警系統。
c.集中報警系統中規定的“一臺具有集中控制功能的火災報警控制器和消防聯動控制器”是集中報警系統的最小組成,實際設計中可以選用火災報警控制器和消防聯動控制器組合。“集中控制”和“集中作用”應理解為一個起集中控制作用的系統平臺,報警信息、聯動信息、確認信息等能通過一套設備集中統一處理、顯示、傳輸和手動操作的,即視為一個系統平臺。
多管理業態民用建筑中火災自動報警系統設計原則和設計要點
電氣設計師在進行該類項目的火災自動報警系統設計時,如果僅僅考慮滿足相關規范和標準中的技術要求,而不考慮物業管理需求,那么該系統的設計就有瑕疵,在以后的安裝、調試、系統維護以及消防安全管理等方面會存在火災自動報警及聯動控制邏輯混亂、管理權責不明等技術缺陷和安全隱患。
因此,該類型建筑在進行火災自動報警系統設計時,應同時把物業管理界面劃分等作為重要的設計依據,并應提醒本項目暖通專業和給排水專業設計師共同關注物業管理劃分的情形,以便在火災自動報警系統對防排煙系統、消防水系統等進行聯動設計時,確保報警信號傳輸和聯動控制邏輯與物業管理劃分的范圍一致。
本文討論的該類型民用建筑,因規模大、建設分期等特征,又因存在多家物業管理劃分等因素,按規范要求應設置多個集中報警系統,故采用控制中心報警形式,消防控制室可根據工程實際設置一處或者多處。
下面以某項目為例,詳細闡述多物業管理民用建筑中火災報警系統設計應關注的設計原則和設計要點。
項目概況
該項目占地3.6萬m2,總建筑面積20萬m2,建筑高度185 m,其中地上12.4萬m2,地下7.6萬m2;地下2層,地上1~6層為裙房、7~42層為塔樓(其中含3個避難層);地下室主要功能為商業配套、物業管理用房、車庫,裙房主要功能為商業、物業管理用房,塔樓主要功能為辦公、避難區。
◎設計輸入條件的確定
設計開始前須收集的前置輸入條件分為兩類:一類是外部條件,主要是指業態分布及物業劃分;一類是內部條件,主要是指根據外部輸入條件,內部各專業在建筑平面、防排煙系統、消防水系統等各系統設計方案和平面圖的具體體現。
a.外部輸入條件
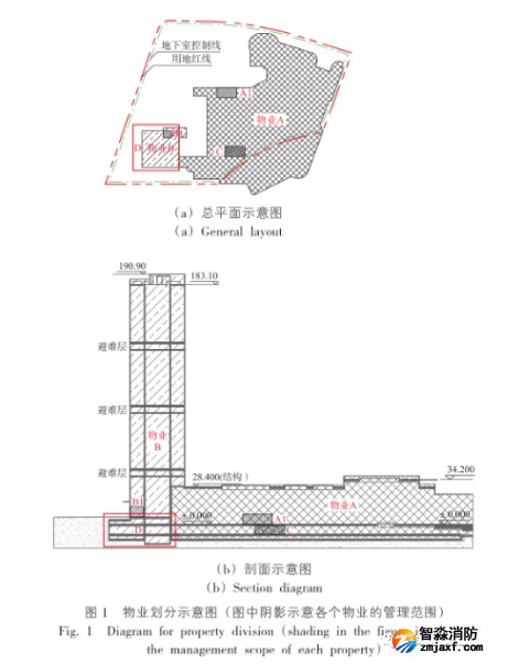
物業管理劃分為2家:地下室和商業裙房為某商業管理公司管理(下稱物業A),自持;辦公塔樓、辦公塔樓豎向交通核心筒及一層大堂等為當地政府回購自用管理(下稱物業B)。具體的物業劃分界面比較復雜,圖1為物業劃分示意圖。

圖1中:A1為物業A消控室(主控室,設置在1層);B1為物業B消控室(分控室,設置在1層);C為消防水泵房(物業A和物業B消防水泵房合用,消防水系統分設,設置在B1層);D為機電系統設計與物業管理劃分交叉區域(物業B管理范圍為外輪廓投影范圍標高±0.000以下層)。
b.內部輸入條件
參與設計的各相關專業根據外部輸入條件進行綜合分析,確定合理的系統方案,并征得建設方、各物業管理方的確認。該項目各專業討論確定的設計原則如下:
a.建筑專業:不同物業管理劃分界面原則上以建筑防火分區物理隔斷為主。
b.給排水專業:消防水系統原則上按兩家物業分別設置兩套獨立的消防水系統,但系統設備共用消防水泵房和消防水池,消防水泵房和消防水池設置在物業A管轄范圍。
c.暖通專業:防排煙系統原則上按防火分區設置,同時兼顧消防水系統設計范圍以及物業管理劃分界面。
d.電氣專業:兩個物業分別設置相對獨立的變配電系統(分別稱為物業A變電所和物業B變電所),消防設備和非消防設備供電可遵循物業劃分和就近供電原則,但非消防設備電源聯動切除設計以及應急照明和疏散指示系統聯動控制設計,應與其他消防設備的服務范圍一致。
因機電系統的特點,無法做到完全與建筑專業的物業劃分界面一致或嚴格做到一致的話,系統設計將不再經濟合理,所以機電系統的設計不可避免地存在物業管理交叉問題。
◎消防系統主機房選址
該項目因物業B僅管理塔樓及對應投影范圍內較小范圍的地下室,地下部分無設置單獨消防水泵房的條件,故為物業B服務的消防水系統雖獨立設置,但消防水泵房與物業A合用,設置在物業A范圍內。
該項目因管理方要求,消防控制室按物業管理劃分情況分別獨立設置,管理權則盡量分開,所以在物業A和物業B管理范圍內分別設置消防控制室,因合用的消防水泵房位于物業A管理范圍內,所有確定物業A范圍內的消防控制室為主控室。
消防控制室選址的其他要求按規范相關規定,在此不再贅述。
◎火災自動報警系統的設計分析
報警系統報警信號與聯動控制對應一致原則
該原則分兩個方面:一是聯動控制觸發信號應與對應聯動控制設備的服務范圍一致,稱為報警和聯動的范圍一致;二是聯動控制觸發信號與聯動控制指令應由同一個集中報警系統的火災報警控制器接收和發出,稱為信號處理與控制指令發出的系統一致。
報警和聯動范圍一致原則應在設計之初通過專業間協調確定,也就是消防水系統、防排煙系統、消防應急照明和疏散指示系統、火災自動報警系統等系統覆蓋范圍應一致。
表1列明了本示例項目各消防系統的覆蓋范圍以及各系統對應的狀態信息、報警信息處理與控制對應的消防控制室。

信號處理與控制指令發出的系統一致原則體現在報警區域劃分、報警回路劃分以及聯動控制邏輯編程等方面,應確保一條報警信號作為聯動控制觸發信號只交由一套集中報警系統的火災報警控制器判斷處理并執行聯動控制,避免同一報警區域的報警信號由多臺火災報警控制器同時處理響應,更應避免多個消控室之間的火災報警控制器出現同時聯動控制一臺消防設備的情況。
跨物業管轄范圍的機房與對應服務范圍的火災自動報警系統設計“一致統一”原則
該“一致統一”原則是上述“報警系統報警信號與聯動控制對應一致原則”的特殊情況。表2列明了本示例項目典型的消防設備機房中的報警信息、機房內各系統的狀態信息和聯動控制信號等與各個消防控制室的邏輯對應關系。

表2中消防水泵房為物業A和物業B兩個不同管理業態的共用消防水泵房(共用空間,消防水系統分別獨立設置),該機房內的消防電話分機應與各消控室內的消防電話主機對應分別設置,消防水池液位信號也應按消防水系統各自獨立的原則分別傳至各消控室,各消防水系統相關的聯動信號、反饋信號、消防泵的直啟線等按表2不再贅述。該機房內設置的火災探測器的報警信號按上述“報警系統內報警信號與聯動控制對應一致原則”傳至主消控室即可。
表2中服務物業B中1層大堂的B1層排煙機房坐落在物業A的管轄范圍,該機房受物業A消防系統的覆蓋和保護。經分析,該機房在火災自動報警系統設計時有兩種設計方案:
a.方案1:該機房內的火災探測器、設備聯動及反饋信號、消防備用照明等均遵循“報警系統報警信號與聯動控制對應一致原則”統一接至物業B分消控室,由分消控室判斷做出該機房內消防設備的聯動控制指令,同時該機房內的報警信息傳至主消控室,由主消控室判斷做出對該機房區域進行保護消防設備的聯動控制指令。
b.方案2:該機房內所有消防設施及信號均接至物業A主消控室,同時該機房消防設備所服務的大堂區域的火災探測器及排煙設備的聯動控制及反饋信號亦應同步接至物業A主消控室,統一由主消控室判斷做出與該機房相關的所有對應消防設備的聯動控制指令。
其他需要特別說明的事項:《報警規范》中規定的應急廣播系統、防火門監控系統等其他火災報警系統的設計原則可參照本文上述闡明原則實施。
《報警規范》規定的“消防聯動控制器應具有切斷火災區域及相關區域的非消防電源的功能”,條文中的“相關區域”在設計中一般理解為火災區域的相鄰樓層或相鄰防火分區,本項目中切斷火災區域的非消防電源無疑義,但在物業劃分交接區域發生火災時,相鄰區域涉及跨物業管理(跨消控室服務范圍)的,須由主消控室相應的消防聯動控制器發出切斷該區域非消防電源的聯動控制信號,這在報警系統編程調試階段予以實現。
◎火災自動報警系統的設計要點梳理及平面表達
各個消控室之間以及消控室與消防水泵房之間需要傳輸的信號線纜類型和數量較多,設計時應標注清楚并確定合理的敷設方式和路由規劃。本文結合示例項目梳理了消控室之間以及各消控室與重要消防設備機房之間的主要信號傳輸類別,為類似項目的火災自動報警系統設計以及平面圖繪制提供參考。
圖2梳理了主要機房之間與火災自動報警系統設計相關的典型信號傳輸邏輯,更多復雜業態或更多物業管理模式項目均可參考。

圖2中符號含義如下:a為機房內探測器報警信號;b為機房內消防報警電話;c為系統中各種閥門聯控及反饋信號(1表示物業A消防水系統;2表示物業B消防水系統);d為消防水池液位信號;e為消防設備直啟線(1表示物業A消防水系統;2表示物業B消防水系統);f為所有火災自動報警信號和聯動控制狀態信息;g為消防安全管理信息;h為報警狀態信息。
圖2中僅表達了火災自動報警系統設計中的典型信號類型,實際工程設計中,各個消防控制室內設置的消防控制室圖形顯示裝置應能顯示《報警規范》附錄A規定的建筑物內設置的全部消防系統及相關設備的動態信息和附錄B規定的消防安全管理信息,并應為遠程監控系統預留接口,同時應具有向遠程監控系統傳輸附錄A和附錄B規定的有關信息的功能。
結語
大型多物業管理民用建筑在進行火災自動報警系統設計時,除嚴格按照國家、地方、行業等相關的現行標準、規范進行設計外,還應根據建筑形態分布、業態類型以及物業管理劃分等因素確定合理的報警形式,并設置合理數量的消防控制室。
但實際的工程設計中,因各個機電系統的技術特點和成本因素,如果嚴格做到按物業管理界面劃分很可能并不經濟,所以就避免不了各個機電消防系統的設計與物業管理范圍存在交叉。
多物業管理交叉范圍內的消防安全,一方面是按本文所述盡量在系統設計階段確保其合理性,還應確保后續消防安全管理的科學性。
多物業管理交叉范圍的消防安全管理應由多個物業管理方按《中華人民共和國消防法》及地方政府相應的法規、規章的規定,共同確定管理交叉區域的消防安全管理的主體職責方,制定詳細的消防安全管理辦法,約定和規范使用方和管理人的履責行為,確保消防安全無盲區,保障生命、財產安全。
蘇州市智淼消防科技有限公司http://www.yeliqing.cn/蘇州智淼消防主營:應急管理部發布最新消防檢測儀器設備全套配備、防雷檢測裝置,火災現場勘查箱、消防監督檢查驗收箱、消防測試煙槍、試水裝置、建筑消防設施檢測箱、電氣防火檢測設備等,消防檢測設備網址:http://www.yeliqing.cn/;電話:18910580194(何經理)
推薦文章
- 《文化旅游建筑消防設計技術要點》之暖通專業(含防排煙)
- 司法部《行政執法人員行為準則》全文:嚴禁越權執法、不作為、慢作為
- 氣體滅火系統管道管件材質要求
- 室內消火栓、室外消火栓的保護距離是直線距離還是行走距離
- 14個強制性國家標準發布!覆蓋消防管理、火災探測報警、消防器具配件、防火涂料等重點領域
- 氣體啟動氣瓶的檢驗依據
- 自動噴水滅火系統工程消防施工質量驗收標準
- 甲類倉庫是否可以設置二層平臺?
- 自然排煙窗一定要形成對流才可以嗎
- 智淼新款一體式二合一煙溫試驗器及紅紫外火焰探測器功能試驗器






蘇公網安備32058102002157號